Página inicial
 
   
 
 
Maquete - Alçado Norte Foto maquete do projecto
 
 
Próximos Projectos da empresa | Execução do Hotel Rural ArsDurium **** Home
Fachada norte - Casa do Lodeiro

ArsDurium Hotel *** - Hotel Douro alojamento

Boassas, 9 de Dezembro 2008

A Empresa ArsDurium Lda. do ramo da hotelaria/ restauração, tendo em vista a organização de actividades turísticas, e facultar os espaços dos seus empreendimentos, para eventos, tem em mãos, neste momento, em desenvolvimento um projecto de construção de um Hotel Rural no Douro, mais concretamente na margem sul, no concelho de Cinfães. Onde dispõem já, do terreno necessário à persecução do respectivo investimento numa área total de 5000 m2 e que permitirá aos seus clientes obter, a privacidade que muitos valorizam e anseiam nas suas férias...
Neste momento em estudo e licenciamento nas diversas entidades nacionais/ regionais competentes, o projecto, assenta no potencial turístico da região do Douro, nas vertentes cultural, gastronómica e de vinhos. Não descurando no entanto e obviamente as magnificas paisagens que o Douro oferece, sendo para isso uma mais-valia o local onde será implementado o hotel, com uma visão paradisíaca sobre todo o vale do Douro e as respectivas serras do Marão e Montemuro, proporcionando uma vista fabulosa de 360 graus a todos os visitantes e clientes do Hotel.
Apostando num hotel de características “conciliadoras” com o moderno e tradicional numa fusão excepcional, inovador e harmonioso com a natureza que o circunda, que se pretende manter e até preservar, por exemplo, através da criação de percursos pedestres no interior e exterior da própria Quinta, o empreendimento, no entanto, também não descura a vertente patrimonial para a qual, muito irá contribuir este investimento. Não só, na recuperação e valorização do edifício do século XIX de características impares onde situará o hotel, com a sua magnifica varanda sobre o Douro, mas também na própria recuperação da Aldeia do Lodeiro, bastante fragilizada e desertificada, para o qual se intenta, este investimento traga uma nova dinâmica, não só, na criação de emprego, mas também na recuperação e arranjo da própria aldeia, seus caminhos e sua história, com certos edifícios no seu núcleo de interesse, com características barrocas, infelizmente descurados, ao longo de décadas.
De realçar, também a uma centena de metros deste investimento, que poderão ser trilhadas pelos turistas, ávidos de história e natureza (caminhos públicos, a serem recuperados, esperamos pelas entidades competentes, Autarquia e Junta de Freguesia e o próprio hotel, por que não …), encontramos a Quinta do Paço, do famoso explorador africanista Serpa Pinto, património concelhio, de invulgar dimensão, perspectivando-se que esse espaço venha a ser explorado para um Museu e hotel, em regime de aluguer, por uma empresa também ela privada…

A Empresa ArsDurium Lda. é detentora da exploração comercial, na vertente de Turismo em Espaço rural (TER), da Casa do Lódão, na qual tem aprendido e adquirido experiencia no sector, pretendendo agora, transpôr, para o futuro novo Hotel, a filosofía da casa, caracterizado ao longo destes anos, pela privacidade, conforto e harmonia, sempre de olhos voltados para o seu vale e serpentiar do seu rio, o Douro...

| Texto da autoria de | Manuel Carlos Santos da Cerveira Pinto |
| Sócio Gerente da Empresa ArsDurium Lda. |
| Sede: Ald. Lodeiro |
| CAE: 55202 e 93293 | Cap.social: 125.000 euros |




 



 




 





 




    Animais de estimação aceites Estacionamento privativo Garagem Piscina Quartos com aquecimento Refeições Sala de leitura Estação de comboio a 4 km Flash 8
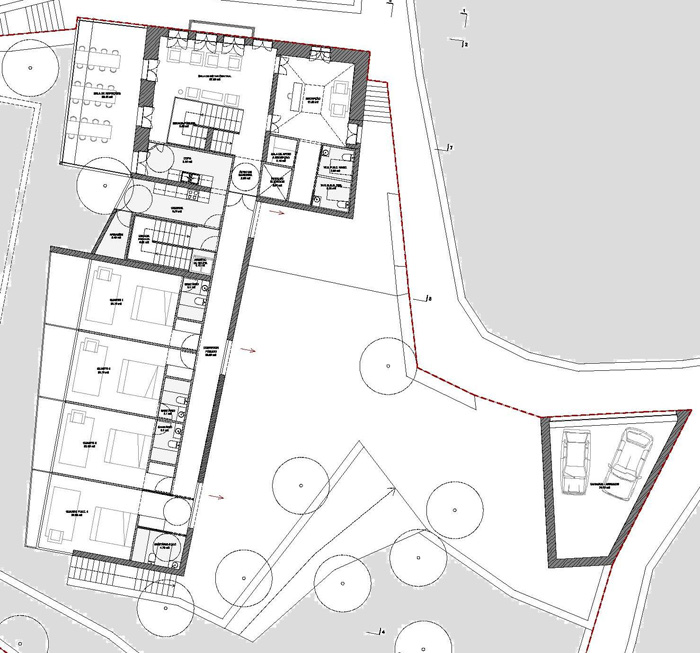
planta do hotel - poente Alçado Sul - Hotel Rural Planta alçado nascente - Hotel rural
Clique numa miniatura para ampliar. Mais fotos  
1 2 3 4 5 6 7
 
     
 

Rafting no Rio Paiva e diversos desportos de natureza associados.
A empresa de Desportos Radicais "Rafting Atlantico" e a Casa do Lódão formularam protocolo de cooperação por forma, a oferecer aos seus clientes na sua estadia, diversas actividades lúdicas, de cariz natural e de aventura. Ver mais (+)

Refeições confeccionadas para a Casa do Lódão
É possível almoçar ou jantar na casa, desde que, com aviso prévio... (+)

Aldeia de Boassas e Lódão na ATA (Associação de Turismo de Aldeia).
A aldeia de Boassas classificada como "Aldeia de Portugal". Ver mais (+)

Livro sobre a Aldeia de Boassas. Autor.Manuel Santos Cerveira Pinto
Livro: Boassas uma Aldeia com história
O desenho gráfico é de Armando Alves e a edição é do Jornal Miradouro.Já à venda, com prefácio de Manuel Cerveira Pinto (Ex-Presidente da Câmara Municipal de Cinfães).
Contacto: 255 561 337

Visita à Casa Museu de Eça de Queiroz
Partindo da Casa do Lódão em direcção a Baião, encontramos a Casa Museu a cerca de 15km... (+)

Comboio histórico
O Comboio Histórico do Douro funciona todos os Sábados de 31 de Maio a 4 de Outubro. (+)

Vindimas
As vindimas irão ser feitas entre os dias 20 de Setembro e 10 de Outubro. Aproveite a oportunidade para observar e até participar.

Promoção - 2 dias na Casa do Lódão pelo preço de 1
Venha conhecer a casa do Lódão e todo o Vale do Douro, e aproveite os preços semanais para ficar 2 dias e apenas pagar 30 euros... (+)

 
     
Clique aqui
 
 
 
 
 
© Copyright 2007 Casa do Lódão Turismo Rural Douro- Direitos Reservados
 
Uma criação 
mcf.pt